2-к, Серышева, 74 Показать на карте
Кировский район
Хабаровск
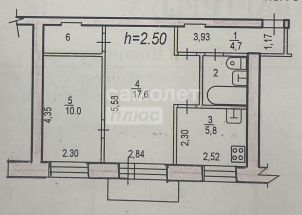
Продается уютная двухкомнатная квартира напротив ДВГУПС площадью 51,8 кв. м, расположенная на 9-м этаже 9-этажного кирпичного дома, построенного в 1986 году. В квартире удобная планировка(см. на фото): жилая площадь составляет 39,7 кв. м, кухня — 6,9 кв. м. Высота потолков — 2,5 метра. Квартира без ремонта, поэтому у вас есть возможность воплотить свои дизайнерские идеи и сделать все по своему вкусу. В квартире один большой балкон, который можно переделать в лоджию и чаще наслаждаться видом на город (выглядит чарующе) + увеличить жилую площадь. Окна выходят во двор, что обеспечивает тишину и уют. Если необходимо исключить всю мебель - уточняйте, буду рад ответить (все вопросы обсуждаемы). В квартире отдельный санузел. Дом находится в хорошем состоянии, имеется пассажирский лифт и мусоропровод. Для владельцев автомобилей предусмотрена наземная парковка - когда поставили шлагбаум (доступ есть только у собственников дома) у меня всегда находилось место, куда я мог припарковать машину. Рядом с домом расположены все необходимые объекты инфраструктуры: вуз, тц, школы, детские сады, кафе, банк клиники и магазины. Это отличное место для комфортной жизни. Если провести ремонт, то остальное сыграет только на руку - вы одновременно находитесь в центре активной жизни города, и куда нужно рукой подать. При этом имеете уютное место, где процветает гармония и покой. Одно отлично сочетается с другим! Хорошая транспортная доступность позволит быстро добраться до любой части города.Квартира продается от собственника, поэтому вы можете быть уверены в чистоте сделки.Записывайтесь на просмотр, чтобы оценить все преимущества этой квартиры лично.
51 м2
9 / 9 этаж
Кирпич
- Показать контакты
- Добавить в избранное
51 м2
9 / 9 этаж
Кирпич
6 490 000
125 290 /м2
