Дом, Лиственная Показать на карте
Краснофлотский район
Хабаровск
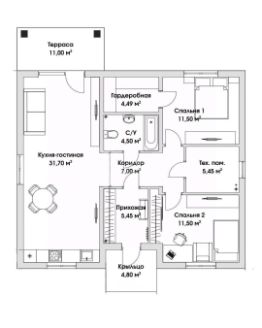
Продается современный коттедж 111 м² с участком 10 соток Подходит под ДВ ИпотекуПредставляем вашему вниманию новый дом премиум-класса для комфортной жизни всей семьи! О доме:Площадь: 111 кв. м. по полу.Планировка: 2 просторные спальни (одна с собственной гардеробной), светлый санузел, практичное техпомещение и большая кухня-гостиная 31.7 кв.м. с выходом на собственную террасу.Коммуникации: Собственная скважина, современный септик ''Топаз'', система фильтрации. Электрическое отопление (котел Zota) с дистанционным управлением + теплый водяной пол по всему дому. Важно: участок газифицирован, и газ можно подвести в дом в следующем году. Отделка и материалы: Дом построен из газобетонаДом сдан под чистовую отделку: идеальная полусухая стяжка, стены тщательно выровнены в 5 слоев шпаклевки под покраску. Фундамент — монолитная плита, стены из газобетона 300 мм, высокие потолки 3.15 м. Фасад утеплен и отделан декоративной штукатуркой и планкеном. Проложено 50 электроточек! Установлена система ''Умный дом'' для вашего комфорта и экономии. Пятикамерные стеклопакеты 70 мм надежно сохраняют тепло. Ипотека:Вы можете приобрести этот дом по Дальневосточной ипотеке по выгодной ставке! Код пользователя: 202720Номер в базе: 9821403
111 м2
1 этаж
- Показать контакты
- Добавить в избранное
111 м2
1 этаж
11 500 000
103 604 /м2
