Нежилое помещение с отдельным входом: выгодное предложение для бизнеса!
Ищете идеальное место для своего бизнеса? Тогда это предложение именно для вас!
Расположение: всего в 5 минутах езды на машине от центра города. Это значит, что вы сможете легко добраться до своих клиентов и партнёров.
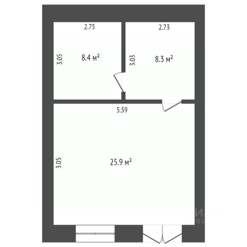
Помещение: расположено на первом этаже жилого 6-этажного дома. Выходит на противоположную от подъездов сторону, что исключает соприкосновение с жильцами дома. Есть одно окно, по плану и в наличии.
Отопление: централизованное, что обеспечивает комфорт и экономию на коммунальных платежах. Площадь: 42,6 кв. м. — достаточно места для реализации любых идей.
Нежилое помещение с отдельным входом: выгодное предложение для бизнеса!
Ищете идеальное место для своего бизнеса? Тогда это предложение именно для вас!
Расположение: всего в 5 минутах езды на машине от центра города. Это значит, что вы сможете легко добраться до своих клиентов и партнёров.
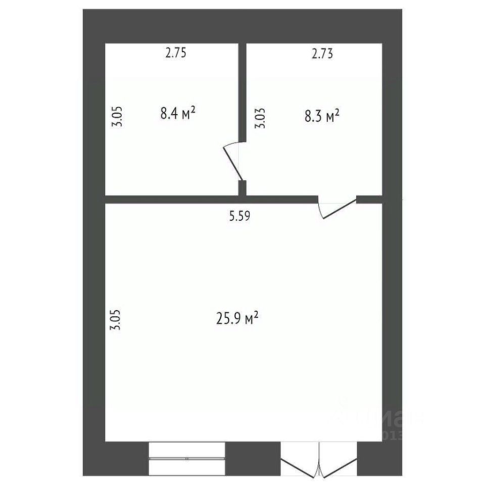
Помещение: расположено на первом этаже жилого 6-этажного дома. Выходит на противоположную от подъездов сторону, что исключает соприкосновение с жильцами дома. Есть одно окно, по плану и в наличии.
Отопление: централизованное, что обеспечивает комфорт и экономию на коммунальных платежах. Площадь: 42,6 кв. м. — достаточно места для реализации любых идей.
Это помещение идеально подойдёт для бьюти-сферы, парикмахерской, ремонтной мастерской или других целей. Перед входом в помещение есть парковка, всегда есть свободные места.
Вы можете совмещать бизнес и проживание, что делает это предложение ещё более привлекательным.
Не упустите свой шанс приобрести отличное нежилое помещение по выгодной цене! Звоните прямо сейчас, и мы договоримся о просмотре!