3-к, Гайдара, 2 Показать на карте
Центральный район
Хабаровск
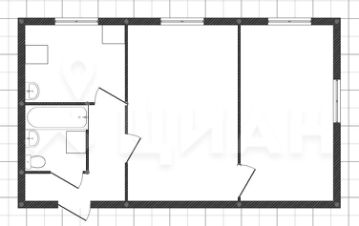
Предлагается к покупке 3-комнатная квартира в центре города.ПЛАНИРОВОЧНОЕ РЕШЕНИЕКомфортная для жизни планировка с большой кухней-гостиной 26м и двумя изолированными спальнями по 15м. В квартире 2 санузла, один из которых находится при взрослой спальне, 4 шкафа-купе, имеется сейф для оружия.Перепланировка узаконена решением суда.Окна спален выходят на парк им. Гайдара (западная сторона, окна кухни-столовой — во двор дома (восточная сторона).ПРОИЗВЕДЕННЫЕ КАПИТАЛЬНЫЕ РАБОТЫ— засыпные полы заменены на бетонные,— дополнительная шумоизоляция детской и взрослой спален (двойной слой изовера по профилям до ГВЛ + двойные входные двери),— дополнительная шумоизоляция стены, смежной с соседской квартирой,— в ванной комнате и зоне кухне установлен водяной теплый пол.Также хочется отметить уникальные особенности ''сталинки'': высота потолков 2.9 метра, в каждой комнате собственная вентиляция, на этаже всего 2 квартиры, а толщина несущих стен в 70 см позволяет эффективно сохранять тепло зимой и прохладу летом.В стоимость квартиры входит вся показанная на фотографиях обстановка (мебель, техника, предметы интерьера).Техника: холодильник, посудомоечная машина, микроволновка, стиральная и сушильные машины, кондиционер. Установлен водонагреватель, действующий в обоих сан.узлах и на кухне, дополнительно на кухне установлена система фильтрации воды.ДОКУМЕНТЫСобственность более 20 лет, обременений и ограничений прав нет - простой и быстрый выход на сделку.Арт. 133715473
74 м2
2 / 5 этаж
Кирпич
- Показать контакты
- Добавить в избранное
74 м2
2 / 5 этаж
Кирпич
13 200 000
177 898 /м2
