2-к квартира Показать на карте
Краснофлотский район
Хабаровск
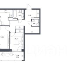
СОВРЕМЕННОЕ ЖИЛЬЕ В СЕРДЦЕ СЕВЕРНОГОНовый проект от застройщика жилого комплекса ''Нордик'': снова яркая архитектура, продуманный и безопасный двор, увеличенные оконные проёмы и светлые квартиры по доступным ценамВ СЕРДЦЕ СЕВЕРНОГО.Преимущества района.Новый жилой комплекс ''Депо'' расположен в районе пересечения улиц Трёхгорная и Тихоокеанская. Отсюда удобный выезд на две главные артерии Северного района - улицу Тихоокеанскую и Воронежское шоссе.Вокруг ''Депо'' сформирована развитая инфраструктура для комфортной жизни - рядом четыре детских сада, две гимназии и средняя школа, больница, аптеки, почтовые и банковские отделения, магазины и кафе. Совсем рядом расположены продуктовый гиперамаркет ''Самбери'', гипермаркет строительных материалов, товаров для ремонта и для дома ''ЛеманаПро'' и АЗС ''ННК''.Эта двухкомнатная квартира площадью 62,45 м² сочетает в себе комфорт, функциональность и современные решения для удобной жизни.Основные зоны:Просторная кухня-гостиная (18,08 м²) идеальное пространство для совместных трапез, отдыха и приема гостей.Две жилые комнаты (12,83 м² и 10,58 м²) изолированные, подходят для спальни, детской или кабинета.Два санузла (3,15 м² и 4,30 м²) раздельные, что удобно для семьи или гостей.Прихожая (5,84 м²) и коридор (3,16 м²) обеспечивают удобное хранение вещей и зонирование пространства.Преимущества: Большая кухня-гостиная центр квартиры, где удобно готовить, обедать и отдыхать. Раздельные комнаты приватность и гибкость в использовании (например, спальня + детская/гостевая). Два санузла комфорт для семьи или при приеме гостей.Для кого подойдет:Семья с ребенком благодаря изолированным комнатам и двум санузлам.Молодая пара просторная кухня-гостиная идеальна для совместного времяпрепровождения.Удаленные работники одна из комнат может служить кабинетом.
62 м2
11 / 12 этаж
Панель
- Показать контакты
- Добавить в избранное
62 м2
11 / 12 этаж
Панель
12 490 000
200 000 /м2
Новостройка,
II-2027
II-2027
