Если цена в объявлении изменится, мы сразу сообщим вам об этом на электронную почту.
Нажимая «Подписаться», вы соглашаетесь с правилами.
продам 3-к, Карла Маркса, 144/1а9 200 000 ₽
25 дек
Дата публикации объявления
Обн. 18 мая
Дата обновления объявления
3
Количество просмотров (+ просмотры за сегодня)
149 837 ₽/м²
Чистая продажа
Термин "Чистая продажа" означает, что в квартире никто не прописан или
есть куда выписаться и вывезти вещи. Это лучший вариант для покупателя.
Вероятность срыва сделки минимальна.
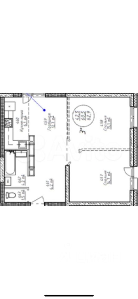
Продаётся просторная трехкомнатная квартира (евро3) площадью 61.4 квадратных метра на восьмом этаже нового монолитного дома, построенного в 2024 году по адресу: город Хабаровск, улица Карла Маркса, дом 144/1а.
Жилая площадь составляет комфортные 30 квадратных метров, а кухня занимает целых 20 квадратных метров идеальное пространство для семейных ужинов и встреч с друзьями. Квартира имеет два балкона, откуда открывается приятный вид на тихий двор, общая площадь квартиры с балконами 68,6 м2.
Для автовладельцев предусмотрена удобная парковка во дворе со шлагбаумом, что гарантирует безопасность вашего транспортного средства.
Продаётся просторная трехкомнатная квартира (евро3) площадью 61.4 квадратных метра на восьмом этаже нового монолитного дома, построенного в 2024 году по адресу: город Хабаровск, улица Карла Маркса, дом 144/1а.
Жилая площадь составляет комфортные 30 квадратных метров, а кухня занимает целых 20 квадратных метров идеальное пространство для семейных ужинов и встреч с друзьями. Квартира имеет два балкона, откуда открывается приятный вид на тихий двор, общая площадь квартиры с балконами 68,6 м2.
Для автовладельцев предусмотрена удобная парковка во дворе со шлагбаумом, что гарантирует безопасность вашего транспортного средства.
Окружающая инфраструктура включает в себя школу, детский сад, торговый центр, парк для прогулок на свежем воздухе и фитнес-центр для поддержания формы. Рядом расположены супермаркеты и магазины различной направленности, а также уютные кафе и рестораны, где можно приятно провести время за чашечкой кофе.
Квартира требует ремонта, что является прекрасной возможностью обустроить жильё согласно вашим личным предпочтениям и вкусам.
Приглашаем вас оценить все преимущества данной квартиры лично! Она ждёт своих новых владельцев, готовых вдохнуть в неё жизнь и создать уютный домашний очаг. Собственник, звонить по времени МСК. квартира в ипотеке, перед продажей закрою ипотеку полностью.