Термин "Чистая продажа" означает, что в квартире никто не прописан или
есть куда выписаться и вывезти вещи. Это лучший вариант для покупателя.
Вероятность срыва сделки минимальна.
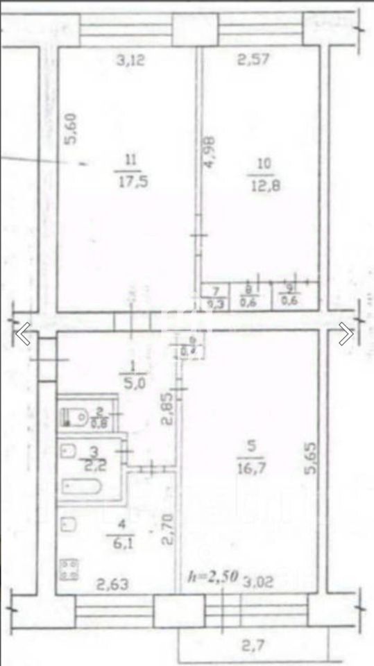
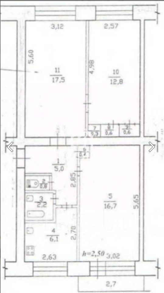
Код объекта: 1782084. Продаётся трёхкомнатная квартира в Комсомольске-на-Амуре по адресу: проспект Первостроителей, 15к5. Это отличный вариант для тех, кто ищет комфортное жильё в спокойном районе, но при этом в центре города.
Квартира расположена на втором этаже пятиэтажного кирпичного дома 1970 года постройки. Общая площадь составляет 63,1 кв. м, из которых 47 кв. м — жилая площадь. Высота потолков — 2,5 м. Комнаты изолированные, их площадь — 17,5 кв. м, 16,7 кв. м и 12,8 кв. м. Кухня небольшая, но уютная — 6,1 кв. м. Санузел раздельный.
Окна выходят как на улицу, так и во двор, что обеспечивает достаточное естественное освещение и у Вас будет возможность видеть как рассветы так и закаты. Квартира не угловая, поэтому в ней всегда тепло.
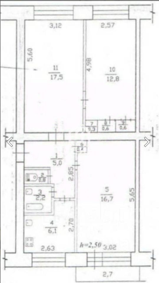
Код объекта: 1782084. Продаётся трёхкомнатная квартира в Комсомольске-на-Амуре по адресу: проспект Первостроителей, 15к5. Это отличный вариант для тех, кто ищет комфортное жильё в спокойном районе, но при этом в центре города.
Квартира расположена на втором этаже пятиэтажного кирпичного дома 1970 года постройки. Общая площадь составляет 63,1 кв. м, из которых 47 кв. м — жилая площадь. Высота потолков — 2,5 м. Комнаты изолированные, их площадь — 17,5 кв. м, 16,7 кв. м и 12,8 кв. м. Кухня небольшая, но уютная — 6,1 кв. м. Санузел раздельный.
Окна выходят как на улицу, так и во двор, что обеспечивает достаточное естественное освещение и у Вас будет возможность видеть как рассветы так и закаты. Квартира не угловая, поэтому в ней всегда тепло. Этот вариант подойдёт тем, кто ценит комфорт и удобство. Не упустите возможность стать владельцем этой уютной квартиры! Звоните нам прямо сейчас, чтобы узнать больше и договориться о просмотре.
Мы гарантируем безопасную сделку и юридическую поддержку нашим Клиентам. За более детальной информацией и для записи на просмотр звоните по указанному телефону.