logo
N1.RU — новая улучшенная версия Е1.Недвижимость
Чтобы вернуться на старый сайт Е1.Недвижимость, перейдите по ссылке в нижней части сайта N1.RU
  • Продажа
  • Аренда
  • Новостройки
  • Журнал
  • Компании
  • Шаблоны документов
  • Налоговый вычет
  • Еще
  • Личный кабинет
    • Регистрация на Циан
    • Хабаровск
  • Добавить объявление
Тип недвижимости
Хабаровск
Начните вводить или выберите объект в выпадающем списке
  • Район и микрорайон
Количество комнат
Цена
  1. Недвижимость в Хабаровске
  2. Продажа
  3. Квартиры
  4. 1952 объявления

Продажа квартир в Хабаровске

  • Вторичка1 476
  • Новостройки476
  • Без посредников14
За все время
Сортировка по умолчанию
СпискомСписком
ТаблицейТаблицей
На картеНа карте
Открыть поиск по карте

По вашему запросу объявлений не найдено

1/13
1-к, Геологов, 15 Показать на карте
Солнечный
Код объекта: 1809407. Продаётся уютная однокомнатная квартира в рабочем посёлке Солнечный по адресу: улица Геологов, 15. Это отличная возможность стать собственником жилья в живописном районе с развитой инфраструктурой.Квартира расположена на 4 этаже пятиэтажного кирпичного дома 1971 года постройки. Общая площадь составляет 29,7 кв. м, из которых 17 кв. м — жилая площадь. Высота потолков — 2,5 м, что создаёт ощущение простора и свободы. Окна выходят на улицу, а наличие балкона позволяет наслаждаться видом и свежим воздухом.Квартира в технически исправном состоянии но, даёт возможность новым владельцам воплотить свои дизайнерские идеи и создать уютное пространство по своему вкусу при проведении ремонта.Расположена квартира в одном из наиболее удобных районов посёлка. Рядом есть всё необходимое для жизни: магазины, школы, детские сады и другие объекты инфраструктуры, что делает её привлекательной как для собственного проживания, так и для сдачи в аренду.Не упустите шанс стать владельцем этой уютной квартиры! Позвоните нам прямо сейчас, чтобы узнать больше и записаться на просмотр.Мы гарантируем безопасную сделку и юридическую поддержку нашим Клиентам. Эдуард.
29 м2
4 / 5 этаж
Кирпич
  • Показать контакты
  • Добавить в избранное
29 м2
4 / 5 этаж
Кирпич
1 350 000 
45 455 /м2
    1/20
    1-к, Тихоокеанская, 178 Показать на карте
    Краснофлотский район
    Хабаровск
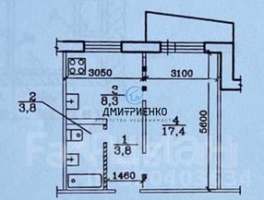
    Агентство недвижимости Дмитриенко.Дом предлагает к продаже уютную 1-комнатную квартиру в Северном микрорайоне города по ул.Тихоокеанская, д.178. Дом панельный, находится под управлением УК Экжиз.Этаж: 2/10, площадь квартиры 31,9 кв.м , жилая- 17,4 кв.м, кухня - 8,3 кв.м.Квартира теплая, светлая, полностью готова к проживанию. Хорошо подойдет для сдачи в аренду. Мебель и бытовая техника остается будущим хозяевам.По всей квартире пластиковые окна, линолеум, обои под покраску, металлическая входная дверь, санузел совмещен, счетчики ГВС, ХВС.Балкон застеклен, с внутренней отделкой.Чистый подъезд, соседи порядочные.Двор ухоженный, цветет сирень, красиво посажены цветы, во дворе есть детская площадка. Рядом с домом парк с благоустроенной территорией, лавочками, где можно хорошо провести время. ========Развитая Инфраструктура района:-Во дворе детский сад 137,-В шаговой доступности Гимназии 7 и 8,-Спортивный центр детского плавания ''Виктория'',-детский сад 192,-Спортивный клуб ''Атлетика''.-Магазины, открылась Пятерочка, аптеки, остановки общественного транспорта 5, 8, 35, 16- все в шаговой доступности.Если ваши дети уже студенты, то минут 10 на автобусе до студенческого городка, где несколько техникумов и институтов.=====1 собственник, быстрый выход на сделку!Квартира без обременений, долгов и прописанных, звоните, все покажем и расскажем!Услуги агентства - 50 т.р.
    31 м2
    2 / 10 этаж
    Панель
    • Показать контакты
    • Добавить в избранное
    31 м2
    2 / 10 этаж
    Панель
    4 590 000 
    143 887 /м2
      1/33
      2-к, Вяземская, 1 Показать на карте
      Железнодорожный район
      Хабаровск
      Продается просторная двухкомнатная квартира в одном из самых удобных районов города. Объект расположен в зоне с развитой инфраструктурой: в пешей доступности находятся супермаркеты ''СамБери'' и ''Бубыль Гум'', аптеки, детский сад и две школы. При этом дом находится в тихом, экологически благоприятном месте — двор ухоженный, озелененный, с детской площадкой, без лишнего шума и суеты. Квартира в отличном состоянии, с качественным ремонтом, раздельным санузлом и хорошей естественной освещенностью. Особого внимания заслуживает большая застекленная лоджия с выведенным радиатором отопления, что позволяет использовать ее как полноценное жилое пространство круглый год. В квартире заменена проводка в санузле и на кухне, силовой щиток перенесен внутрь, что повышает безопасность и удобство эксплуатации. Для новых владельцев остается большая часть мебели и бытовой техники, что делает переезд максимально комфортным. Дом отличается спокойной атмосферой и доброжелательными соседями. Транспортная доступность на высоком уровне — рядом остановки общественного транспорта, выезд на основные магистрали. Это оптимальный вариант для тех, кто ценит удобство расположения, качество жилья и комфортную среду для жизни. Код пользователя: 127673Номер в базе: 8603356
      49 м2
      2 / 9 этаж
      Панель
      • Показать контакты
      • Добавить в избранное
      49 м2
      2 / 9 этаж
      Панель
      6 350 000 
      127 767 /м2
        1/12
        3-к, Ватутина, 18 Показать на карте
        Индустриальный район
        Хабаровск
        Забудьте о компромиссах! Ваша семья заслуживает идеального пространства. Продаётся уютная 3-комнатная квартира с безупречной историей и редкой планировкой ''Ромашка'' в Прибрежном микрорайоне. Здесь каждая деталь создана для гармонии и комфорта. Это не просто квадратные метры. Это готовая история вашего семейного счастья, где у каждого есть свое личное пространство, но вы всегда вместе. Почему эта квартира станет вашим любимым местом? Уникальная планировка ''Ромашка'': Забудьте о длинных тёмных коридорах! Просторные комнаты расходятся лучами от центра, наполняя весь дом светом и уютом. Это идеальное решение для семьи, где ценят и уединение, и возможность быть всем вместе. Простор для жизни и мечты: Целых две большие комнаты по 18 кв. м! Одна может стать родительской спальней, а другая — гостиной для приёма гостей. Третья комната (11 кв. м) — идеальный детский уголок, кабинет для работы или гостевая. Удобство для семьи каждый день: Раздельный санузел — это больше не очередь утром, а комфорт и экономия времени для всех обитателей дома. Вид из окна, который радует глаз: Окна выходят на обе стороны дома (север и юг), что обеспечивает прекрасное естественное освещение. А главное — ваш вид во двор, спокойный и зелёный, а не на шумную дорогу. Спокойствие и уверенность при покупке: Квартира находится в собственности более 5 лет, все документы готовы к продаже. Никаких обременений, скрытых долгов или юридических рисков. Только чистая и прозрачная сделка с двумя взрослыми собственниками. --- Это ваш шанс начать новую жизнь. Просто заезжайте и начинайте жить с удовольствием. Звоните прямо сейчас, чтобы назначить просмотр и своими глазами увидеть, какую гармонию дарит планировка ''Ромашка''. Квартира ждёт своих новых хозяев! P.S. Такие предложения с безупречной историей и редкой планировкой разлетаются очень быстро. Успейте сделать этот уютный уголок своим!
        61 м2
        1 / 5 этаж
        • Показать контакты
        • Добавить в избранное
        61 м2
        1 / 5 этаж
        6 150 000 
        99 354 /м2
          1/18
          1-к, Груднова, 8а корп. 1 Показать на карте
          Краснофлотский район
          Хабаровск
          Новостройка! Состояние - whitе bох, стены выровнены и отштукатурены, вам останется наклеить обои, постелить напольное покрытие, установить межкомнатные двери и выложить кафель в санузле.Район, в котором расположена квартира, очень удобен для жизни. В шаговой доступности находятся детский сад, школы, техникумы, университеты, магазины, аптеки, банки. Для любителей активного образа жизни в районе есть множество спортивных клубов, фитнес-центров и бассейнов. Также недалеко от дома расположен парк с прогулочными зонами, где можно провести время на свежем воздухе.Удобная транспортная развязка позволит быстро добраться до любой точки города. Эта квартира станет отличным вариантом для молодой семьи, студента или инвестора. Не упустите возможность приобрести уютное жилье в прекрасном районе Хабаровска. Звоните и приходите на просмотр! Мы уверены, что этот объект заинтересует вас своими преимуществами и удобствами.Два взрослых собственника.Квартира приобреталась у застройщика по Договору долевого участия. Возможна продажа в рассрочку.При звонке, пожалуйста, сообщите номер варианта - JV001027104553
          32 м2
          10 / 10 этаж
          Панель
          • Показать контакты
          • Добавить в избранное
          32 м2
          10 / 10 этаж
          Панель
          5 500 000 
          167 173 /м2
          Новостройка,
          дом сдан
            1/29
            2-к, Амурский бульвар, 18 Показать на карте
            Центральный район
            Хабаровск
            Продаётся прекрасная квартира с хорошим ремонтом в самом центре города! Этаж 3/13, новая планировка, всё раздельно. Сделан свежий ремонт из качественных материалов. Стены выровнены. Установлены новые многокамерные окна, натяжные потолки. На полу гидроизоляция с уплотнителем, ламинат. Новый кухонный гарнитур с вытяжкой, глубокой мойкой, удобной стеклокерамической плитой. Заменена электропроводка. По всей квартире установлены энергосберегающие софиты и светильники. Санузел раздельный. В туалете и ванной качественный кафель и сантехника, установлены счётчики на воду, раковина с тумбой. В квартире, для безопасности, на всех батареях стоят краны для перекрытия. Большая застеклённая лоджия. В подьезде 2 лифта: пассажирский и грузопассажирский. Приобретали без материнских капиталов и залогов. Небольшие коммунальные платежи. Один взрослый собственникМебель и бытовая техникаНовый кухонный гарнитур, вытяжка, стеклокерамическая плита. В прихожей вместительный, встроенный Шкаф-купе.Инфраструктура и коммуникацииДомофон. Парковка во дворе. Отличное предложение для проживания или сдачи квартиры в найм. Самый центр города. В непосредственной близости от дома располагается всё что необходимо для достойного проживания: магазины, остановки, учебные заведения, медицинский центр Вивея, несколько кинотеатров. Отдел полиции 7, Поликлиники, детский сад 90Арт. 73283898
            53 м2
            3 / 13 этаж
            Кирпич
            • Показать контакты
            • Добавить в избранное
            53 м2
            3 / 13 этаж
            Кирпич
            9 450 000 
            178 302 /м2
              1/15
              2-к, Большая, 105 Показать на карте
              Железнодорожный район
              Хабаровск
              Продается ухоженная 2-комнатная квартира с полным мебельным гарнитуром.Ключевые преимущества:Локация: Центральный район Хабаровска, непосредственная близость к ТРЦ ''Большая Медведица''.Инфраструктура: Максимально развитая. Всё в пешей доступности.Транспорт: Отличная развязка общественного транспорта — все маршруты под рукой.Для семьи: Рядом школа 77, детские сады 34 и 143.Комфорт: Раздельный санузел. Вся мебель остается новому владельцу.Бытовые вопросы решены: Рядом аптеки, супермаркеты ''Пятёрочка'', ''Раз-Два'' и другие магазины.Об объекте:Площадь: 55 кв.м.Этаж: [Уточнить этаж]Санузел: раздельныйСостояние: жилое, с мебельюПланировка: изолированные комнатыИдеальный вариант для тех, кто ценит свое время и хочет жить в центре событий без хлопот с ремонтом и покупкой мебели. Отличное вложение в недвижимость в перспективном районе. Код пользователя: 185182Номер в базе: 9685741
              55 м2
              4 / 10 этаж
              Кирпич
              • Показать контакты
              • Добавить в избранное
              55 м2
              4 / 10 этаж
              Кирпич
              8 770 000 
              159 455 /м2
                1/20
                1-к, Салтыкова-Щедрина, 1/1б Показать на карте
                Краснофлотский район
                Хабаровск
                Предлагается к продаже видовая, светлая, теплая, просторная квартира в ЖК Амурские Зори, 36,2 кв.м, на десятом этаже монолитного двадцатиэтажного дома, с которого открывается великолепный вид на реку Амур. Дом сдан в 2024г. Отличная планировка. Установлены радиаторы отопления с выгодными индивидуальными приборами учета, есть стяжка пола, пластиковые окна, металлическая дверь, заведены все коммуникации. Зал с эркерными окнами. Кухня с выходом на лоджию. Есть место под гардеробную. Большой санузел. В доме установлены камеры видеонаблюдения. Лифты грузовой и пассажирский. Большая парковка. В шаговой доступности остановка Спиртзавод авт. 17. Недалеко: парк Северный (Собор Серафима Саровского), школы, д. сады, торговые центры, ТОГУ, ХГАЭиП. Ближайшие улицы: Тихоокеанская, Правобережная, Бойко-Павлова. Один взрослый собственник, квартира без обременений. Зарегистрированных нет. Чистая продажа. И да, лучше звонить, а не писать.
                36 м2
                10 / 20 этаж
                Монолит
                • Показать контакты
                • Добавить в избранное
                36 м2
                10 / 20 этаж
                Монолит
                4 600 000 
                127 072 /м2
                Новостройка,
                I-2024
                  1/18
                  1-к, профессора Даниловского М.П., 18б Показать на карте
                  Краснофлотский район
                  Хабаровск
                  Продается уютная квартира в Краснофлотском районе, всего в нескольких шагах от живописного парка Северный! Это идеальное место для комфортной жизни, где все необходимое находится под рукой. В непосредственной близости от дома расположены магазины, детский сад и экономическая гимназия, что делает его отличным выбором для семей с детьми. Для студентов и молодых специалистов здесь также не будет проблем — в шаговой доступности находятся два техникума, а также Политехнический и Экономический институт. Квартира полностью готова к продаже: в ней остается кухонный гарнитур и шкаф-купе в прихожей, а остальная мебель обсуждается по договоренности. Недвижимость находится в собственности более 5 лет, без обременений и подходит под ипотеку. Чистый подъезд с современным умным освещением и домофоном обеспечит вам комфорт и безопасность. Летом вы сможете наслаждаться ухоженной придомовой территорией с зелеными насаждениями, а также всегда найдете место для вашего автомобиля на парковке во дворе. Район характеризуется развитой инфраструктурой: рядом автобусная остановка, строительный магазин, а также один из самых красивых парков города с прогулочными зонами и детскими площадками. В окрестностях также находятся летнее кафе, кинотеатр и продуктовые супермаркеты, что делает вашу жизнь еще более удобной. Не упустите шанс стать владельцем этой замечательной квартиры по привлекательной цене! Записывайтесь на просмотр уже сегодня и откройте для себя новый уровень комфорта и уюта! Код пользователя: 149288Номер в базе: 8635761
                  31 м2
                  4 / 5 этаж
                  Панель
                  • Показать контакты
                  • Добавить в избранное
                  31 м2
                  4 / 5 этаж
                  Панель
                  4 500 000 
                  143 770 /м2
                    1/33
                    3-к, Калинина, 41 Показать на карте
                    Комсомольск-на-Амуре
                    Продается просторная квартира с дизайнерским ремонтом, расположенная в благоустроенном дворе с ограждением и шлагбаумом. В настоящее время во дворе проводится капитальный ремонт, что повышает комфорт и внешний вид территории. Объект отличается улучшенной планировкой с большой кладовой комнатой, отдельным санузлом с новой сантехникой и кафельной плиткой, а также качественной отделкой. В квартире установлены счетчики на воду, в зале смонтирован теплый пол и электрокамин, балкон застеклен новыми рамами. Частично остается мебель и техника: кухонный гарнитур, газовая плита с электродуховкой, посудомоечная машина, встроенные шкафы, угловой диван, компьютерный стол, а также шторы и жалюзи во всех комнатах. Дом находится на ТСЖ, в подъезде выполнен свежий ремонт, действует система видеонаблюдения в подъездах и лифте. Район обладает развитой инфраструктурой: в шаговой доступности находятся супермаркеты, включая маркетплейсы Ozon и WB, отделение ''Почты России'', детский сад 46, школы 8 и 19, а также крупная остановка общественного транспорта с маршрутами во все направления города. Рядом расположены кафе, закусочные, аптеки и пожарная часть, что обеспечивает высокий уровень бытового удобства и безопасности. Квартира полностью ''под ключ'', все чистое, новое, красивое.Звоните в любое время, организую показ, расскажу. Такую прекраснейшую квартиру необходимо увидеть своими глазами, соотношение цены и качества. Свободная продажа, любой расчет. Принимаем все предложения! Код пользователя: 188229Номер в базе: 9957506
                    65 м2
                    10 / 10 этаж
                    Панель
                    • Показать контакты
                    • Добавить в избранное
                    65 м2
                    10 / 10 этаж
                    Панель
                    5 500 000 
                    83 460 /м2
                      1/15
                      3-к, Сортировочная, 5 Показать на карте
                      Комсомольск-на-Амуре
                      Продам 3-комнатную квартиру в одном из районов нашего города, по адресу ул.Сортировочная, д.5. Квартира с простым косметическим ремонтом: окна пластиковые, выровнены стены и оклеены обоями, установлена новая сантехника. Подъезд ухоженный, соседи поддерживают чистоту и порядок. Если кто-то хоть раз побывал здесь, тот прекрасно знает преимущества данного района. Немаловажным фактором является наличие собственной котельной в поселке, это означает тепло в каждой квартире вне зависимости от наличия пластиковых окон. Второе это чистейшая артезианская вода, которую пьют прямо из-под крана. Третье это благоустроенные, чистые дворы с детскими площадками, где ваши дети могут гулять, даже без присмотра, чистые, ухоженные подъезды. А еще здесь превосходные детские школьные и дошкольные учреждения, где вашим деткам непременно понравится. Практически во дворе школа 62 и детский сад 125, в принципе все рядом! В центральную часть города регулярно ходит автобус маршрута 107. Код пользователя: 130675Номер в базе: 7665755
                      57 м2
                      4 / 4 этаж
                      Кирпич
                      • Показать контакты
                      • Добавить в избранное
                      57 м2
                      4 / 4 этаж
                      Кирпич
                      2 000 000 
                      35 088 /м2
                        1/13
                        2-к, Вологодская, 49 Показать на карте
                        Индустриальный район
                        Хабаровск
                        уютная квартира, комнаты раздельные, большая прихожая, балкон выходит во двор. состояние жилое. ипотека подходит.
                        43 м2
                        2 / 3 этаж
                        Кирпич
                        • Показать контакты
                        • Добавить в избранное
                        43 м2
                        2 / 3 этаж
                        Кирпич
                        4 800 000 
                        110 855 /м2
                          1/31
                          3-к, Пионерская, 11 Показать на карте
                          Комсомольск-на-Амуре
                          Код объекта: 1619681. Уникальное предложение для тех, кто ценит комфорт и доступность!Адрес: Россия, Хабаровский край, Комсомольск-на-Амуре, Пионерская улица, 11.Почему стоит рассмотреть эту квартиру?Выгодная цена: мы предлагаем отличное соотношение цены и качества. Это идеальное решение для тех, кто хочет приобрести жильё без переплат.Удобное расположение: квартира находится в развитом районе с хорошей инфраструктурой. Рядом есть всё необходимое для комфортной жизни: магазины, школы, детские сады, аптеки и спортивные клубы. Лёгкий доступ к общественному транспорту позволит вам быстро добраться до любой точки города.Просторная и светлая квартира: общая площадь составляет 61 кв. м, из которых 43 кв. м — жилая площадь. Три изолированные комнаты (17 кв. м, 14 кв. м и 12 кв. м) и две раздельных санузла обеспечивают комфорт и удобство для всей семьи. Высота потолков 3 метра создаёт ощущение простора и свободы.Косметический ремонт: квартира готова к проживанию. Вы можете сразу заселиться и наслаждаться новым домом или сделать ремонт по своему вкусу.Дополнительные преимущества:- кирпичный дом 1939 года постройки с деревянными перекрытиями,- центральное отопление,- наземная парковка,- балкон.Эта квартира подойдёт молодым специалистам, семьям с детьми, бизнес-профессионалам и инвесторам.Позвоните нам прямо сейчас, чтобы узнать больше и записаться на просмотр!Мы гарантируем безопасную сделку и юридическую поддержку нашим Клиентам. Поможем одобрить ипотеку с сниженной ставкой.
                          61 м2
                          2 / 5 этаж
                          Кирпич
                          • Показать контакты
                          • Добавить в избранное
                          61 м2
                          2 / 5 этаж
                          Кирпич
                          4 800 000 
                          78 689 /м2
                            1/11
                            1-к, Комсомольский проспект, 22 Показать на карте
                            Амурск
                            В продаже однокомнатная квартира в центре г. Амурска, по пр. Комсомольский, 22- 3/5 этаж- 32,3 кв.м. общая площадь- пластиковые окна, застеклённый балкон- сантехника в хорошем состоянии, установлены приборы учёта- современная стальная входная дверь- чистый подъезд, хорошие соседи- один взрослый собственник, без долговОстаётся вся мебель, электроплита, жк телевизор и стиральная машинаТихий, спальный район, рядом: парковая зона, лодочная станция, Дом культуры, Фитнес-центр, популярные магазины (в т.ч. Пятёрочка, 28, 31, Хоту-Ас, кафе Мука Мёд, пиццерия Мармелад и др.), развитая сфера услугОднокомнатная на третьем этаже, в центре Звоните)
                            32 м2
                            3 / 5 этаж
                            Панель
                            • Показать контакты
                            • Добавить в избранное
                            32 м2
                            3 / 5 этаж
                            Панель
                            1 250 000 
                            38 700 /м2
                              1/15
                              1-к, Панфиловцев, 27 Показать на карте
                              Индустриальный район
                              Хабаровск
                              Срочно продам однокомнатную квартиру в спальном районе города Хабаровска. Район индустриальный, но район самый, что не есть спальный. Всё необходимое для комфортной и стабильной жизни находится в шаговой доступности от дома. Квартира очень тёплая, не сквозит и не промерзает. Квартира расположена на первом этаже пятиэтажного дома. Управляющая компания тщательно следит за состоянием подъездов и придомовой территории. Уютная, без перепланировок с одним единственным собственником владеющим квартирой более 10 лет. Все документы в порядке и готовы к сделке. Звоните, пишите, записывайтесь на просмотр. Код пользователя: 183703Номер в базе: 8643801
                              31 м2
                              1 / 5 этаж
                              Панель
                              • Показать контакты
                              • Добавить в избранное
                              31 м2
                              1 / 5 этаж
                              Панель
                              4 100 000 
                              131 833 /м2
                                1/21
                                2-к, Пионерская, 6а Показать на карте
                                21-й
                                Продается уютная двухкомнатная квартира в с. Воронежское-2! Площадь: 50,6 кв. метров Тип дома: Кирпичный Комнаты: Раздельные Кухня: Просторная Балкон: Застекленный с шикарным видом на Амур Эта солнечная и очень теплая квартира станет вашим идеальным уголком для жизни! Наслаждайтесь утренним кофе с видом на реку и свежим воздухом, который дарит окружающая природа. Комфорт и удобство: • Центральные сети • Горячая вода без отключений Преимущества расположения: • В шаговой доступности река Амур • Множество зелени и свежий воздух • Все необходимое для загородной жизни рядом Идеально подходит под ДВ ипотеку 2%! Дополнительно есть два гаража с организованными подъездными путями, дорога заасфальтированаНе упустите возможность стать владельцем этой замечательной квартиры! Звоните прямо сейчас, чтобы записаться на просмотр! 12:56ReplyCopy Selected TextPinForwardSelectDelete Код пользователя: 150540Номер в базе: 8970079
                                50 м2
                                3 / 3 этаж
                                Кирпич
                                • Показать контакты
                                • Добавить в избранное
                                50 м2
                                3 / 3 этаж
                                Кирпич
                                3 900 000 
                                77 075 /м2
                                  1/24
                                  3-к, Муравьева-Амурского, 38а Показать на карте
                                  Центральный район
                                  Хабаровск
                                  Предлагается к продаже 3-х комнатная квартира в кирпичном доме сталинской планировки в центре г. Хабаровска. Квартира находится на 2 этаже 2-этажного дома 1957 года постройки. Площадь квартиры 61,0 кв.м., жилая 39,6 кв.м.(13,2/12,2/14,2), кухня 6,0 кв.м.+ балкон 1,4 кв.м.+ лоджия 6,4 кв.м. Высота потолков 2,98 м. Санузел раздельный. Квартира светлая, просторная, уютная, сделан косметический ремонт. Санузел в кафеле, сантехника в хорошем состоянии. Пластиковые окна, потолки частично натяжные, частично ГВЛ. Из одной спальни выход на балкон, с другой на большую застекленную лоджию. Установлены счетчики на горячую и холодную воду. Плита электрическая. К квартире предусмотрена кладовая 15 кв.м. Во дворе имеются парковка, где хватает места всем жильцам. Двор огорожен и закрыт воротами.В подъезде всего пять квартир, поэтому всегда тихо и спокойно, широкие лестничные марши, произведен капитальный ремонт с заменой труб и батарей.Отличная транспортная развязка. В шаговой доступности расположены Центральный рынок, кинотеатры, театры, парки, бульвары, рестораны, магазины, кафе, Медуниверситет, площадь Ленина и т.д. Квартира в собственности с 1993 года. Один взрослый собственник. Долгов, обременений, ограничений нет. Документы полностью готовы к сделке купли-продажи.
                                  61 м2
                                  2 / 2 этаж
                                  • Показать контакты
                                  • Добавить в избранное
                                  61 м2
                                  2 / 2 этаж
                                  9 000 000 
                                  147 541 /м2
                                    1/26
                                    3-к, ДОС кв-л, 66 Показать на карте
                                    Железнодорожный район
                                    Хабаровск
                                    Предлагаем к продаже для большой дружной семьи, отличную 3-х комнатную квартиру в тихом, спальном районе, с хорошо развитой инфраструктурой!!! Просторная, светлая, уютная квартира, на 10-м этаже (сверху еще технический этаж) 10-ти этажного панельного дома 1991 года постройки. Общая площадь70 кв.м., жилая 40,3кв.м., кухня 11,4 кв.м., все раздельно, просторный зал 19,1 кв.м. с выходом на просторный балкон (4,9 кв.м.) Балкон остеклен с внутренней отделкой, в квартире произведен косметический ремонт, натяжные потолки, пластиковые окна, санузел раздельный, сантехника исправная в хорошем, рабочем состоянии. В прихожей установлен вместительный шкаф-купе, который остается в квартире, кухонный гарнитур также остается, вся остальная мебель по договоренности! Перепланировок нет, задолженности нет, альтернатива! До центра города 10 минут езды на авто, вся инфраструктура в шаговой доступности : ''Самбери'', ТЦ Юбилейный, Rich Family, поликлиника 7, Школа 26, Многопрофильный лицей (во дворе дома), Академия Правосудия.Ухоженный двор, хорошая детская площадка, аккуратный подъезд, порядочные соседи, новый лифт.Квартира в собственности с 2006 года в собственности по договору купли-продажи. Рассмотрим вариант обмена на 2-х комнатную квартиру новой планировки ближе к центру.Лучше один раз увидеть на осмотре, чем сто раз перечитывать))) звоните, записывайтесь на просмотр, при встрече отвечу на все интересующие вопросы. Реальному покупателю разумный трог при осмотре!!!
                                    70 м2
                                    10 / 10 этаж
                                    • Показать контакты
                                    • Добавить в избранное
                                    70 м2
                                    10 / 10 этаж
                                    7 150 000 
                                    102 143 /м2
                                      1/13
                                      2-к, Сидоренко, 24 Показать на карте
                                      Комсомольск-на-Амуре
                                      К продаже представлена хорошая уютная двухкомнатная квартира в самом центре города, район очень тихий спокойный, но с развитой инфраструктурой: в пяти минутах ходьбы детские сады (35 и 8), гимназия 9 и школы (14, 27, 51), торговые центры, медицинский центр и Библиотека Островского - всё необходимое поблизости. Детская площадка в закрытом со всех сторон домами дворе - дети будут всегда под присмотром. Подъезд чистый с хорошими соседями. Квартира производит положительное впечатление. Сделан современный ремонт, новые натяжные потолки, окна пластиковые, балкон с внутренней отделкой, двери все заменены на новые можно заехать и спокойно обустраиваться. Звоните! Не упустите возможность приобрести недвижимость в самом востребованном районе города! Код пользователя: 180923Номер в базе: 9708478
                                      45 м2
                                      4 / 5 этаж
                                      Кирпич
                                      • Показать контакты
                                      • Добавить в избранное
                                      45 м2
                                      4 / 5 этаж
                                      Кирпич
                                      3 880 000 
                                      86 031 /м2
                                        1/28
                                        2-к, Адмиральская, 9 Показать на карте
                                        Краснофлотский район
                                        Хабаровск
                                        Продается ухоженная 2х комнатная квартира в северном районе г. Хабаровска.Очень светлая и уютная квартира! Расположение в спокойном спальном районе с хорошей экологией — еще один плюс. В шаговой доступности находятся все необходимые объекты инфраструктуры: школы, детские сады, магазины, почта и банки. Спортивный комплекс ''Авангард'' и стадион рядом — отличные места для активного отдыха. А до центра города всего 15-20 минут на автомобиле!Состояние квартиры - заходи и живи! Остается вся мебель.Подъезд после ремонта, приличные соседи люди.Идеально подходит для студентов: всего 8 минут до Технического университета и техникумов.Не упустите возможность стать владельцем уютной квартиры в прекрасномрайоне! Код пользователя: 174804Номер в базе: 9696540
                                        52 м2
                                        3 / 5 этаж
                                        Панель
                                        • Показать контакты
                                        • Добавить в избранное
                                        52 м2
                                        3 / 5 этаж
                                        Панель
                                        6 200 000 
                                        117 202 /м2
                                          1/25
                                          2-к, Первостроителей проспект, 21 Показать на карте
                                          Комсомольск-на-Амуре
                                          Ищете квартиру, куда можно просто заехать и жить, наслаждаясь каждым моментом? Представляем вашему вниманию уютную и солнечную квартиру в одном из самых престижных и красивых районов города! Ваши преимущества:- Раздельные комнаты и санузел.- Просторная кухня 7,1 м.- Квартира готова к сделке, без встречных вариантов.- Локация уникальная: Расположение это одно из ключевых преимуществ! Вся необходимая городская инфраструктура в пешей доступности: рейтинговые школы и детские сады, крупные сетевые магазины, отделения банка. Удобная транспортная развязка.- Спокойствие и Безопасность: Чистый, ухоженный подъезд, интеллигентные и тихие соседи залог вашего спокойствия.- Быстрая Сделка: Все документы готовы к продаже, никаких долгов и обременений. Юридическая чистота сделки гарантирована.Почувствуйте атмосферу уюта и благополучия в этой квартире она ждет своих новых счастливых хозяев! Код пользователя: 180923Номер в базе: 9970522
                                          49 м2
                                          5 / 9 этаж
                                          Кирпич
                                          • Показать контакты
                                          • Добавить в избранное
                                          49 м2
                                          5 / 9 этаж
                                          Кирпич
                                          5 300 000 
                                          108 163 /м2
                                            1/26
                                            2-к, Гамарника, 15а Показать на карте
                                            Центральный район
                                            Хабаровск
                                            О КВАРТИРЕ: 2-комнатная квартира в тихом центре города в кирпичном доме в районе ост. ''Гостиница Амур''. Квартира в отличном состоянии, ''заезжай и живи'', с ремонтом, выполненном с хорошим вкусом из качественных материалов. Удобный 3 этаж. Квартира теплая, очень солнечная. Окна выходят в нешумный зелёный двор. Планировка удобная-санузел совмещенный, комнаты раздельные. (Одна из комнат соединена с кухней).Есть балкон, остеклён и с внутренней отделкой. Также бонусом к квартире прилагается кладовка в подвале дома для хранения различных вещей.НАПОЛНЕНИЕ: В квартире остаётся почти всё, что вы видите на фото. Из бытовой техники остается кондиционер, холодильник, стиральная машина, бойлер, телевизор. Из мебели-вместительные шкафы-купе, и практически все, кроме одного дивана и кресла.О ДОМЕ: Дом кирпичный, с толстыми тёплыми стенами. Обслуживается УК ЖКХ ''Сервис-центр''. Придомовая территория ухожена, во дворе детская площадка и закрытая парковка для машин. Доброжелательные благополучные соседи.МЕСТОРАСПОЛОЖЕНИЕ: Дом расположен в Центральном районе в границах улиц Ленина-Гамарника-Запарина-Волочаевская. Отлично развита инфраструктура-рядом с домом детский сад, школа 30, множество магазинов, аптек, ресторанов, кафе, парковых зон для отдыха и многое другое. Отличная транспортная доступность во все районы города.ДОКУМЕНТЫ: Квартира более 5 лет принадлежит одному взрослому собственнику, долгов по коммунальным платежам нет, обременений нет, материнский капитал не использовался. Документы готовы к сделке. С реальным покупателем поговорим о торге. Звоните, отвечу на все вопросы, Татьяна.
                                            44 м2
                                            3 / 5 этаж
                                            Кирпич
                                            • Показать контакты
                                            • Добавить в избранное
                                            44 м2
                                            3 / 5 этаж
                                            Кирпич
                                            10 000 000 
                                            225 734 /м2
                                              1/31
                                              2-к, Европейский кв-л, 4 Показать на карте
                                              с. Мирное
                                              У Вас есть уникальная возможность жить в черте города в прекрасной квартире и воспользоваться при этом ЛЬГОТНОЙ программой по ипотеке!!!Если вы ищете уютное и комфортное жильё в спокойном районе, то данное предложение точно привлечёт ваше внимание. Продаётся квартира в идеальном состоянии и современным ремонтом. В этом районе все преимущества жизни - от качества отделки до инфраструктуры района.Территория жилого комплекса огорожена, что обеспечивает безопасность и спокойствие. Здесь очень тихо, зелено и уютно, много цветов и очень свежий воздух.Все дома малоэтажные, благодаря чему нет проблем с парковкой в любое время суток.Прямо рядом с домом расположен новый детский сад. До школы курсирует школьный автобус.В паре минут ходьбы расположены супермаркет, пекарня, автобусная остановка.Документы готовы, долгов и обременений нет. Код пользователя: 174804Номер в базе: 9969763
                                              45 м2
                                              2 / 3 этаж
                                              Бетонные блоки
                                              • Показать контакты
                                              • Добавить в избранное
                                              45 м2
                                              2 / 3 этаж
                                              Бетонные блоки
                                              7 250 000 
                                              161 111 /м2
                                                1/17
                                                2-к, Ленина, 25а Показать на карте
                                                Солнечный
                                                Уважаемые покупатели!Продается великолепная двухкомнатная квартира в доме улучшенной планировки, которая станет идеальным местом для комфортной жизни! Просторные раздельные комнаты создают атмосферу уюта и гармонии, а балкон подарит возможность наслаждаться свежим воздухом и красивыми видами. В квартире выполнен косметический ремонт: установлены современные пластиковые окна,санузел отделан кафельной плиткой и оборудован душевой кабиной. Вся мебель и техника остаются новым владельцам, что позволит вам сразу же наслаждаться комфортом без дополнительных затрат. Просторная кухня станет настоящим кулинарным раем для любителей готовить. Квартира очень теплая и светлая, что создаст уютную атмосферу в любое время года. Во дворе предусмотрена большая парковка, что особенно удобно для автолюбителей. Расположение квартиры также не может не радовать! В шаговой доступности находятся все необходимые объекты инфраструктуры: спортивная площадка для активного отдыха, школа N3, МФЦ, детский сад ''Аленушка'', дом культуры и множество магазинов на любой вкус. Не упустите шанс стать владельцем этого замечательного жилья! Звоните прямо сейчас, и мы с удовольствием согласуем удобное для вас время для показа квартиры. Ваш новый дом ждет вас! Код пользователя: 159793Номер в базе: 7046186
                                                45 м2
                                                4 / 5 этаж
                                                • Показать контакты
                                                • Добавить в избранное
                                                45 м2
                                                4 / 5 этаж
                                                2 500 000 
                                                55 556 /м2
                                                  1/24
                                                  3-к, Красногвардейская, 26 Показать на карте
                                                  Комсомольск-на-Амуре
                                                  Код объекта: 1582831. Уважаемые покупатели!Вашему вниманию выставлена на продажу трёхкомнатная квартира в Комсомольске-на-Амуре по адресу: улица Красногвардейская дом 26.В квартире выполнен качественный ремонт: -заменены пластиковые окна:-балкон и лоджия с внутренней и внешней отделкой,-заменены радиаторы отопления:-новые входная дверь,-новые межкомнатные двери,-заменена во всей квартире электропроводка,-заменена вся сантехника, заменены все трубы,-стены, полы выровнены,-в квартире поклеены обои теплых оттенков,-на полу ламинат,-натяжные потолки с софитами,-установлены счетчики ГВС, ХВС, газ.В ПОДАРОК в квартире новым владельцам остается:-кухонный гарнитур,-газовая плита,-вытяжка,-стиральная машина LG,-прихожая,-2-х спальная кровать,-2 прикроватных тумбы,-2 шкафа,-диван+2 кресла,-стенка.Расположение очень удачное: дом находится в спокойном районе с развитой инфраструктурой. Рядом есть всё необходимое для комфортной жизни: магазины, школы, детские сады, аптеки, спортивные клубы. Пересечение с улицами: Ленина, Севастопольская, Мира.Мы гарантируем безопасную сделку и юридическую поддержку нашим клиентам. Поможем одобрить ипотеку с сниженной ставкой. Звоните нам прямо сейчас, чтобы узнать больше и договориться о просмотре!С уважением Янина.
                                                  59 м2
                                                  6 / 10 этаж
                                                  Панель
                                                  • Показать контакты
                                                  • Добавить в избранное
                                                  59 м2
                                                  6 / 10 этаж
                                                  Панель
                                                  6 190 000 
                                                  104 034 /м2
                                                    • В начало
                                                    • 31
                                                    • 32
                                                    • 33
                                                    • 34
                                                    • 35
                                                    • Следующая
                                                    Распечатать
                                                    Продажа квартир в Хабаровске
                                                    • по районам
                                                    • Железнодорожный район
                                                    • Индустриальный район
                                                    • Кировский район
                                                    • Краснофлотский район
                                                    • Центральный район

                                                    Вместе с этим также ищут:

                                                    Продажа квартир в Хабаровске Продажа однокомнатных квартир в Хабаровске Продажа комнат в Хабаровске Продажа гаражей в Хабаровске Продажа вторички - квартиры в Хабаровске Квартиры в новостройках в Хабаровске

                                                    🏠 Как купить квартиру в Хабаровске на N1?

                                                    • ✔ В поисках объявления о продаже или покупке квартир в Хабаровске?
                                                    • ✔ На N1 размещены 1,95 тыс квартир
                                                    • ✔ Чтобы купить или продать недвижимость, воспользуйтесь формой поиска, фильтрами или быстрыми ссылками.

                                                    💸 Сколько стоит квартира в Хабаровске?

                                                    • 🟢 Средняя цена продажи квартир - 5,81 млн ₽
                                                    • 🟢 Минимальная стоимость за 1 м2: 119,46 тыс ₽

                                                    📚 Какая площадь квартир?

                                                    • Наибольшая площадь: 1 тыс м²
                                                    • Минимальная площадь: 11 м²